西柴2丁目 中古戸建
物件情報
地図
コメント【外観】敷地約209㎡の南東角地!八景島の花火を望む眺望です!カースペース2台駐車可能!開放感のあるウッドデッキ付きです!
※地図上に表示される物件の位置は付近住所に所在することを表すものであり、実際の物件所在地とは異なる場合がございます。
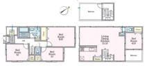
西柴2丁目 中古戸建の物件概要
【中古一戸建】西柴2丁目 中古戸建の販売物件情報
株式会社べステートTOP > (戸建(売買))地域から探す > 横浜市金沢区 > 西柴2丁目 中古戸建
西柴2丁目 中古戸建
物件情報
地図
コメント【外観】敷地約209㎡の南東角地!八景島の花火を望む眺望です!カースペース2台駐車可能!開放感のあるウッドデッキ付きです!
※地図上に表示される物件の位置は付近住所に所在することを表すものであり、実際の物件所在地とは異なる場合がございます。
西柴2丁目 中古戸建の物件概要
【中古一戸建】西柴2丁目 中古戸建の販売物件情報
